Nyrenoverad villa på stor tomt mitt i Kårsta villasamhälle.
Nyrenoverad villa med hel källare på stor plan trädgårdstomt. Villan är till stora delar nyrenoverad 2025-26. Hela entrévåningen är genomgången med nyare kök och helt nytt badrum. Genomgående nya golv och nymålade väggar och tak. Entrévåningen har ett stort kök med utgång till altan. Vardagsrum och två sovrum. Källare med sovrum, tvättstuga, hobbyrum, matkällare och pannrum. Utvändigt har huset fått ny fasad, nytt yttertak och är omdränerat. Även nya fönster är monterat i huset. Fiber är precis indraget i huset.
Fastigheten ligger i direkt närhet till minilivs och busshållplats. Det är kort gångavstånd till skola F-6 och tåg som tar dig hela vägen till Stockholm.
Huset kommer att säljas förbesiktigat och försäkrat mot dolda fel.
Rumsbeskrivning
Hall med laminatgolv -25, målade väggar och tak -25.
Kök från Ikea med laminatgolv -25, målade väggar och tak -25, nya bänkskivor, luftvärmepump -23 samt utgång till altan.
Köket är utrustat med induktionshäll (Electrolux), spisfläkt -25, kyl/frys, diskmaskin, separat ugn (Electrolux) och micro.
Sovrum med laminatgolv -25, målade väggar och tak -25.
Vardagsrum med laminatgolv -25, målade väggar och tak -25 samt 3 garderober med överskåp.
Sovrum med laminatgolv -25, målade väggar och tak - 25 samt garderob med överskåp.
Badrum med klinkergolv (golvvärme) samt helkaklade väggar. Helrenoverat -25.
Badrummet är utrustat med w.c., kommod,, dusch med duschväggar samt spegel med belysning.
Trappa till källare
Hall med målat betonggolv -26. målade väggar och tak 26.
Matkällare med målat betonggolv -26, målade väggar och tak -26.
Förråd med målat betonggolv -26, målade väggar och tak -26.
Pannrum med betonggolv.
Tvättstuga med målat betonggolv, målade väggar och tak -26.
Tvättstugan är utrustad med tvättmaskin Samsung.
Sovrum med laminatgolv -26, målade väggar och tak -26.
Hobbyrum med målat betonggolv -26, målade väggar och tak -26, utgång till tomten.
Interiör
- Boarea
- 78 m2 (Lantmäteriet)
- Biarea
- 78 m2
- Rum
- 4
- Antal sovrum
- 3
- Internet
Fiber indraget i huset.
Byggnad
- Fastighetsbeteckning
- VALLENTUNA KÅRSTA-RICKEBY 2:117
- Typkod
- 220 Småhusenhet, helårsbostad
- Byggnadstyp
- 1-plans hus med källare
- Byggår
- 1950
- Renoveringar
Ny elcentral 2025.
Ny fasad och tilläggsisolering 2025.
Nya fönster 2025.
Huset omdränerat 2025.
Nytt yttertak 2025.
Nydragen el i kök och badrum 2025.
Fiber 2025.- Uppvärmning
- Vattenburen värme via elpanna samt luftvärmepump
- Grund
- Platta på mark
- Fasad
- Träfasad
- Tak
- Betongpannor
- Fönster
- 2-glasfönster isoler
- Vatten
- Enskilt vatten året om
- Avlopp
- Kommunalt avlopp
Uteplats
Altan med utgång från köket
Tomt
- Tomtyta
- 2486 m2
- Tomtuppgifter enligt
- Lantmäteriet
Parkeringplatser
Grusad uppfart med plats för flera bilar
Närområdet
Kårsta är ett trevligt samhälle c:a 2 mil norr om Vallentuna centrum. I Kårsta finns det förskola, skola upp till årskurs 6, minilivs och restaurang. Trevliga badsjön Bergsjön ligger på promenadavstånd från fastigheten. Även badsjön Sparren ligger några km från fastigheten. Nära skog med fina strövområden och rikt på bär och svamp. Det är c:a 6 km till Söderhall, där finns livs, bensinstation och Sibylla.
Från Kårsta station går Roslagsbanan till Stockholm Östra via Vallentuna, Täby och Danderyd. Buss 665 går från Kårsta torg till Vallentuna station via Söderhalls trafikplats, där byte kan ske med Norrtäljebussar. Buss 661 går till Vallentuna station via Frösunda och Lindholmen.
Kostnader
Taxering
- Taxeringsår
- 2024
- Taxeringsvärdesår
- 1950
- Taxeringvärde noggrannhet
- Fastställt
- Taxeringsvärde byggnad
- 1 039 000 kr
- Taxeringsvärde mark
- 1 364 000 kr
- Summa taxeringsvärde
- 2 403 000 kr
- Standardpoäng
- 24
- Typkod
- 220 Småhusenhet, helårsbostad
Energideklaration
- Energistatus
- Energideklaration är utförd
- Energideklaration utförd
- Onsdag 15 apr 2026
- Energiklass
- E
- Specifik energianvändning
- 89 kWh/m2
- Energiprestanda, primärenergital
- 161 kWh/m2
- Energikonsumtion
- 17600
Rättigheter och belastningar
- Pantbrev
- 6st om totalt 234 500 kr
Visningar
- Söndag 26 apr 12:00 - 13:00
Välkommen på öppen visning. Anmäl gärna ert deltagande.
- Måndag 27 apr 18:00 - 18:30
Välkommen på öppen visning. Anmäl gärna ert deltagande.
Fakta
- Pris
- 3 795 000 kr Utgångspris
- Typ
- Småhus
- Adress
- Röbytorpsvägen 2
- Ort
- Vallentuna
- Boarea
- 78 m2
- Biarea
- 78
- Rum
- 4
- Tomtarea
- 2486 m2
- Byggår
- 1950
Samarbetspartners
Alla bilder

Plan fin trädgårdstomt

Stort nyare kök

Bra bänkyta i köket

Matplats med utgång till altan

Matplats vid fönster

Altan

Altan med vy över tomten

Hall mot sovrum och vardagsrum

Sovrum

Vardagsrum

Sovrum

Helrenoverat badrum

Hall

Trappa ner till källare

Sovrum med laminatgolv

Hobbyrum med utgång till tomten

Tvättstuga

Förråd

Förråd mot hall och hobbyrum

Matkällare

Nyrenoverad villa

Villan från övre tomtgräns

Villan med grusad infart

Bergsjön ligger med kort promenad från fastigheten

Kårsta skola F -6

Fjärilsparken för många timmars lek och busigheter

Klätterborg för de lite yngre

Utegym

Fastighetskarta
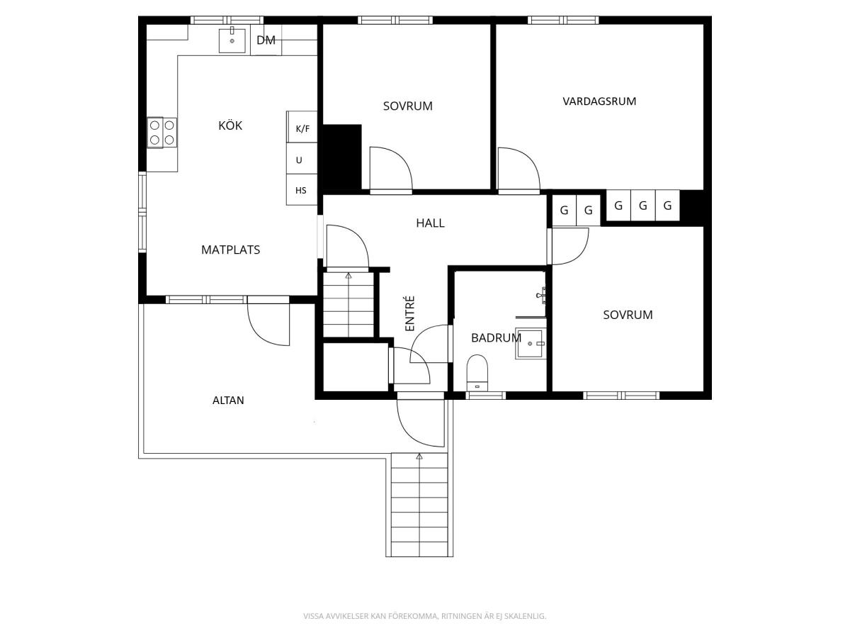
Planlösning

Planlösning, entréplan

































