Bygg nytt hus i lantligt läge!
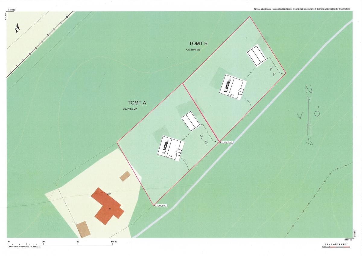
Bygg energisnålt hus o bo med låg månadskostnad . Det ger dig pengar över till annat! Nu kan du bygga Älvsbyhus populära 1,5-plans husmodell Lasse på lantlig tomt i Solsta, Vallentuna. Här bor du lantligt och fint på stor tomt om ca 2080 m² som är avstyckad och klar. Två tomter bredvid varandra. Husförslaget är 95,6 kvm varav 63 kvm inredd yta (entreplan inredd, övervåningen lämnas oinredd), men flera husmodeller från Älvsbyhus passar på tomten. Här kan du bo med en låg driftskostnad i ett modernt hus med 15 års fri fastighetsavgift. Ett härligt hus med fantastiskt god driftsekonomi. Ex. Energiförbrukning för varmvatten och uppvärmning exkl. hushållsel 2755 kWh/år.
Solsta ligger mellan Lindholmen och Frösunda i Vallentuna Kommun. Med bil tar det dig ca 40 minuter till centrala Stockholm och ca 20 min till Täby Centrum.
I Lindholmen finns en ICA-butik som är öppen till kl 20.00 varje dag, förskola, Gustav Vasaskolan F-6 skola och idrottsplats. Ca 8,5 km till Vallentuna centrum som har många olika butiker och service. Med buss 661 från Solsta kommer du till Vallentuna Centrum och där kan du byta till Roslagsbanan för vidare färd in mot Östra Station. Med bil tar det ca 7 min. till Lindholmens och där finns också Roslagsbanan.
Den som äger en obebyggd tomtmark ska betala 1 procent av taxeringsvärdet i statlig fastighetsskatt. När fastigheten är bebyggd, slutbesked utfärdats och fastighetsdeklarerats till Skatteverket, blir fastigheten befriad från fastighetsavgift under 15 år.
I Älvsbyhus visningshus Linnea på husutställningen Nybygget invid Arlanda, går det att titta på tillval. Nybygget är öppet onsdagar 14-19 samt lördagar och söndagar 11-16 (Läs gärna mer och se adress och vägbeskrivning på nybygget.se)
Priset är baserat på husmodell Lasse från Älvsbyhus. Du väljer själv vilka tillval du önskar. Flera husmodeller passar på tomterna. Kontakta Jan-Erik Kronosjö 070-8649650, sthlmnorr@alvsbyhus.se för mer information och visning. Det går även bra att åka och titta på tomten själv.
Fastighetsmäklare Mats Gustafsson ansvarar enbart för köpeavtalet avseende fastigheten / tomten.
Rumsbeskrivning
Entrehall: Hall med en garderob, träfanergolv och tapetserade väggar.
Kök och vardagsrum: Hemtrevligt vitt kök i vinkel. Svart bänkskiva, kakelmönstrat stänkskydd ovan diskbänk, spis med häll, diskmaskin, spisfläkt, kyl/frys i fullhöjd, Samtliga vitvaror kommer från Electrolux. Bra arbetsytor. Träfanergolv och tapetserade väggar. Vardagsrum och kök har en öppen planlösning och är 28,4 kvm tillsammans. Altandörr och fint ljusinsläpp.
Sovrum : Sovrum om 12 kvm med två garderober, träfanergolv och tapetserade väggar.
Badrum: Badrum om 6,8 kvm med duschplats, handfat och WC. Praktisk våtrumsmatta på golvet och våtrumsskivor (Fibo-Trespo) på väggarna (ser ut som kakel). I badrummet ryms även värmepannan. Förråd finns i badrummet som kan göras om till bastu (tillval).
Övervåningen levereras oinredd.
Huset levereras grundmålat.
Lasse är Älvsbyhus minsta 1,5-planshus med sina 63 + 33 m². Det passar både den mindre familjen och ensamhushåll eller par utan barn.
Det är svårt att inte falla för Lasse. Älvsbyhus minsta 1,5-planshus har allt du behöver och ryms även på de mindre tomterna. Ett ljust och öppet kök/vardagsrum med fönster längst hela långsidan, ett rymligt sovrum, badrum med tvättstuga och ett förråd i anslutning till detta.
Tillhör du dem som gärna tar en bastu efter löprundan så går det enkelt att förvandla förrådet till bastu som tillval.
Lasse är enkelt att skräddarsy helt efter dina behov och intressen. Den inredningsbara övervåningen väljer du själv hur den ska se ut innan inflyttning. Kanske vill du ha ett extra sovrum, en ateljé eller ett stort lekrum. Du bestämmer!
Till den inredningsbara övervåningen ingår alltid trappa, fönster, underlagsgolv och förberedelser för vvs, el och data.
Alla våra 1,5-planshus går dessutom att få med tillvalet 34 graders taklutning med förhöjt väggliv. Det gör ytan på övervåningen rymligare. Även takkupa är ett populärt tillval och gör övervåningen både ljusare och luftigare. Med sin storlek och planlösning passar det lilla huset dessutom ypperligt som fritidshus.
Priset är baserat på husmodell Lasse från Älvsbyhus. Du väljer själv vilka tillval du önskar. Flera husmodeller passar på tomten. Kontakta Jan-Erik Kronosjö 070-8649650, sthlmnorr@alvsbyhus.se för mer information och visning. Det går även bra att åka och titta på tomten själv.
Fastighetsmäklare Mats Gustafsson ansvarar enbart för köpeavtalet avseende fastigheten /tomten.
Interiör
- Boarea
- 95 m2 (Husleverantören)
- Rum
- 2
- Antal sovrum
- 1
- Max antal sovrum
- 3
Byggnad
- Fastighetsbeteckning
- Vreda 2:10
- Byggnadstyp
- 1,5-plansvilla
- Uppvärmning
- Frånluftsvärmepump
- Grund
- Krypgrund
- Stomme
- Trä
- Bjälklag
- Trä
- Fasad
- Stående träpanel
- Tak
- Betongpannor
- Utvändiga plåtarbeten
- Plåt
- Fönster
- 3-glasfönster isoler
- Ventilation
- Mekanisk frånluft
- Vatten
- Enskilt vatten
- Avlopp
- Enskilt avlopp
Tomt
- Byggnadens area
- 79.2 m2
- Tomtyta
- 2080 m2
- Tomtbeskrivning
Lantlig tomt
Taxering
- Taxeringvärde noggrannhet
- Ej fastställt
Fakta
- Pris
- 4 291 000 kr Pris från
- Typ
- Småhus
- Adress
- Solsta 20A
- Ort
- Vallentuna
- Boarea
- 95 m2
- Rum
- 2
- Tomtarea
- 2080 m2
Samarbetspartners
Alla bilder

Husmodell Lasse
Obs! Det kan finnas tillval på bilden som inte är inräknade i priset.

Exempelbild husmodell Lasse
Obs! Det kan finnas tillval på bilden som inte är inräknade i priset.

Exempelbild husmodell Lasse
Obs! Det kan finnas tillval på bilden som inte är inräknade i priset.

Planlösning Lasse
Vissa ändringar av planlösningen går att göra såsom tillval.

Exempel planlösning övre plan
Övervåningen lämnas oinredd









